O mnie Projekty Proces Kontakt

Architektura wnętrz

Mieszkanie I w Trzebnicy
Zdjęcia: Łukasz Wróblewski wonzky

Miejsce, w którym można odpocząć i nabrać sił.

Uniwersalne, przytulne, dające uczucie spokoju. Funkcjonalne mieszkanie na wynajem, wykończone dobrymi materiałami.

Uniwersalne, przytulne, dające uczucie spokoju. Funkcjonalne mieszkanie na wynajem, wykończone dobrymi materiałami.

Główne założenia

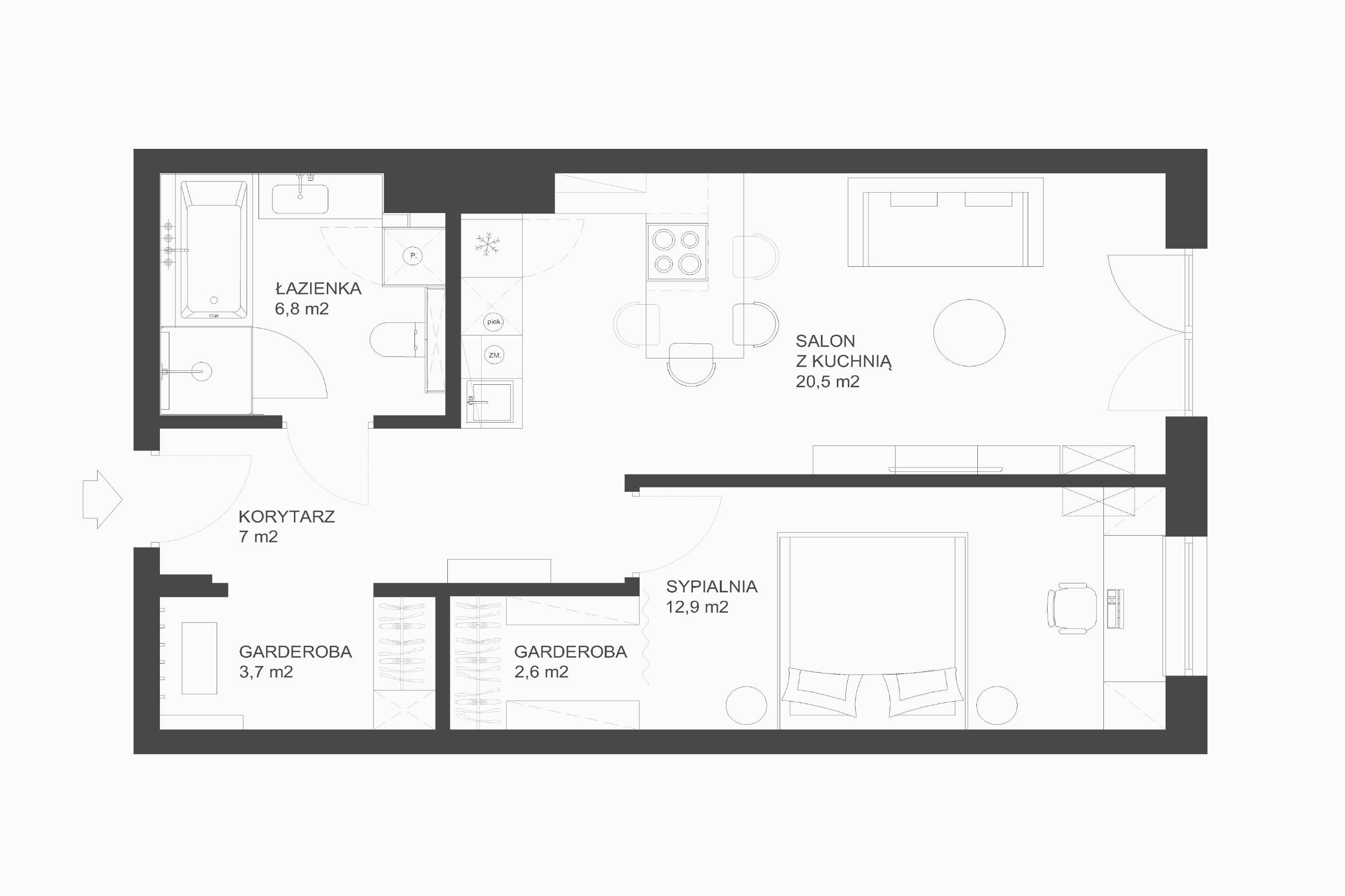
56 m2
Mieszkanie na wynajem
Trzebnica
2023

Jest to projekt jednego z dwóch mieszkań na wynajem, dla menadżerów firmy mojej klientki. Mieszkania miały dawać codzienny komfort użytkownikom i możliwość odpoczynku po pracy, ale ich wystrój miał się od siebie nieco różnić. Jako, że oba lokale są wschodniej ekspozycji, musiałam zadbać o światło. Została więc wyburzona ściana zamykająca salon z kuchnią, co doświetliło i otworzyło przestrzeń.

Całość utrzymana jest w jasnej, ciepłej kolorystyce, podkreślonej ciemnymi elementami i motywem szachownicy. Pojawiają się też drewniane elementy, wnoszące do wnętrza naturalność i przytulność. Płytki na podłodze ujednolicają całą powierzchnię, ale są też bardzo trwałe i łatwe w utrzymaniu czystości. Dbałość o jakość użytych materiałów, jest niezwykle ważna w mieszkaniach na wynajem, aby mogły służyć przez długie lata, pozostając w dobrej formie.

Dzięki skróceniu wnęki w korytarzu, udało się uzyskać drugą garderobę - od strony sypialni i poprawić proporcje mieszkania. A wyburzenie ściany oddzielającej kuchnię, doświetliło i otworzyło przestrzeń.
Dzięki skróceniu wnęki w korytarzu, udało się uzyskać drugą garderobę - od strony sypialni i poprawić proporcje mieszkania. A wyburzenie ściany oddzielającej kuchnię, doświetliło i otworzyło przestrzeń.
Kontrasty sprawiają, że wnętrze jest bardziej intrygujące i ciekawe.
Kontrasty sprawiają, że wnętrze jest bardziej intrygujące i ciekawe.
Kontrasty sprawiają, że wnętrze jest bardziej intrygujące i ciekawe.
Pomimo dużych okien w części dziennej, wschodnia ekspozycja mieszkania, sprawiła, że dominują tu jasne, ciepłe kolory, a oświetlenie jest odpowiednio zróżnicowane.
Pomimo dużych okien w części dziennej, wschodnia ekspozycja mieszkania, sprawiła, że dominują tu jasne, ciepłe kolory, a oświetlenie jest odpowiednio zróżnicowane.
Sosnowe szafki, dzięki swojej naturalności i prostocie, znakomicie oswajają przestrzeń.
Sosnowe szafki, dzięki swojej naturalności i prostocie, znakomicie oswajają przestrzeń.
Wyspa kuchenna pełni również rolę stołu.
Wyspa kuchenna pełni również rolę stołu.
Zasłony dobrane kolorystycznie do całości, miękko otulają przestrzeń.
Zasłony dobrane kolorystycznie do całości, miękko otulają przestrzeń.
Jasne płaszczyzny w ciepłych odcieniach oraz wielka tafla lustra, powiększają wnętrze.
Jasne płaszczyzny w ciepłych odcieniach oraz wielka tafla lustra, powiększają wnętrze.
Jasne płaszczyzny w ciepłych odcieniach oraz wielka tafla lustra, powiększają wnętrze.
Dzięki skróceniu długiej i niefunkcjonalnej wnęki w korytarzu, zostały poprawione proporcje mieszkania. Fotografia na ścianie jest autorstwa Mateusaz Gzika z Decotive.
Dzięki skróceniu długiej i niefunkcjonalnej wnęki w korytarzu, zostały poprawione proporcje mieszkania. Fotografia na ścianie jest autorstwa Mateusaz Gzika z Decotive.
Dzięki skróceniu długiej i niefunkcjonalnej wnęki w korytarzu, zostały poprawione proporcje mieszkania. Fotografia na ścianie jest autorstwa Mateusaz Gzika z Decotive.
Podświetlane półki zamiast szafek wiszących, nadają kuchni lekkości.
Podświetlane półki zamiast szafek wiszących, nadają kuchni lekkości.
Podświetlane półki zamiast szafek wiszących, nadają kuchni lekkości.
Tapicerowane panele na ścianie, pełnią rolę zagłówka, nie zabierając przestrzeni, w dosyć wąskiej sypialni.
Tapicerowane panele na ścianie, pełnią rolę zagłówka, nie zabierając przestrzeni, w dosyć wąskiej sypialni.
Garderoba oddzielona zasłonami, w lekki i miękki sposób wydziela jej przestrzeń w sypialni.
Garderoba oddzielona zasłonami, w lekki i miękki sposób wydziela jej przestrzeń w sypialni.
Panele ścienne ułożone w szachownicę, dodają sypialni zarówno miękkości jak i rytmu.
Panele ścienne ułożone w szachownicę, dodają sypialni zarówno miękkości jak i rytmu.
Po prawej stronie umywalki, znajduje się wysoka zabudowa meblowa ukrywająca pralkę. A otwarte półeczki, są wygodnym miejscem na podręczne przybory.
Po prawej stronie umywalki, znajduje się wysoka zabudowa meblowa ukrywająca pralkę. A otwarte półeczki, są wygodnym miejscem na podręczne przybory.
Metraż łazienki pozwolił na umieszczenie w niej zarówno sporej wanny, jak i dużego prysznica.
Metraż łazienki pozwolił na umieszczenie w niej zarówno sporej wanny, jak i dużego prysznica.
Metraż łazienki pozwolił na umieszczenie w niej zarówno sporej wanny, jak i dużego prysznica.
Szafka umywalkowa z pojemnymi szufladami i wygodnym blatem.
Szafka umywalkowa z pojemnymi szufladami i wygodnym blatem.