O mnie Projekty Proces Kontakt

Architektura wnętrz

Kuchnia i łazienki pani Oli

Wygodny i naturalny dom dla rodziny i jej gości.

Przyjazny minimalizm, subtelne barwy i dużo drewna.

Przyjazny minimalizm, subtelne barwy i dużo drewna.

Główne założenia

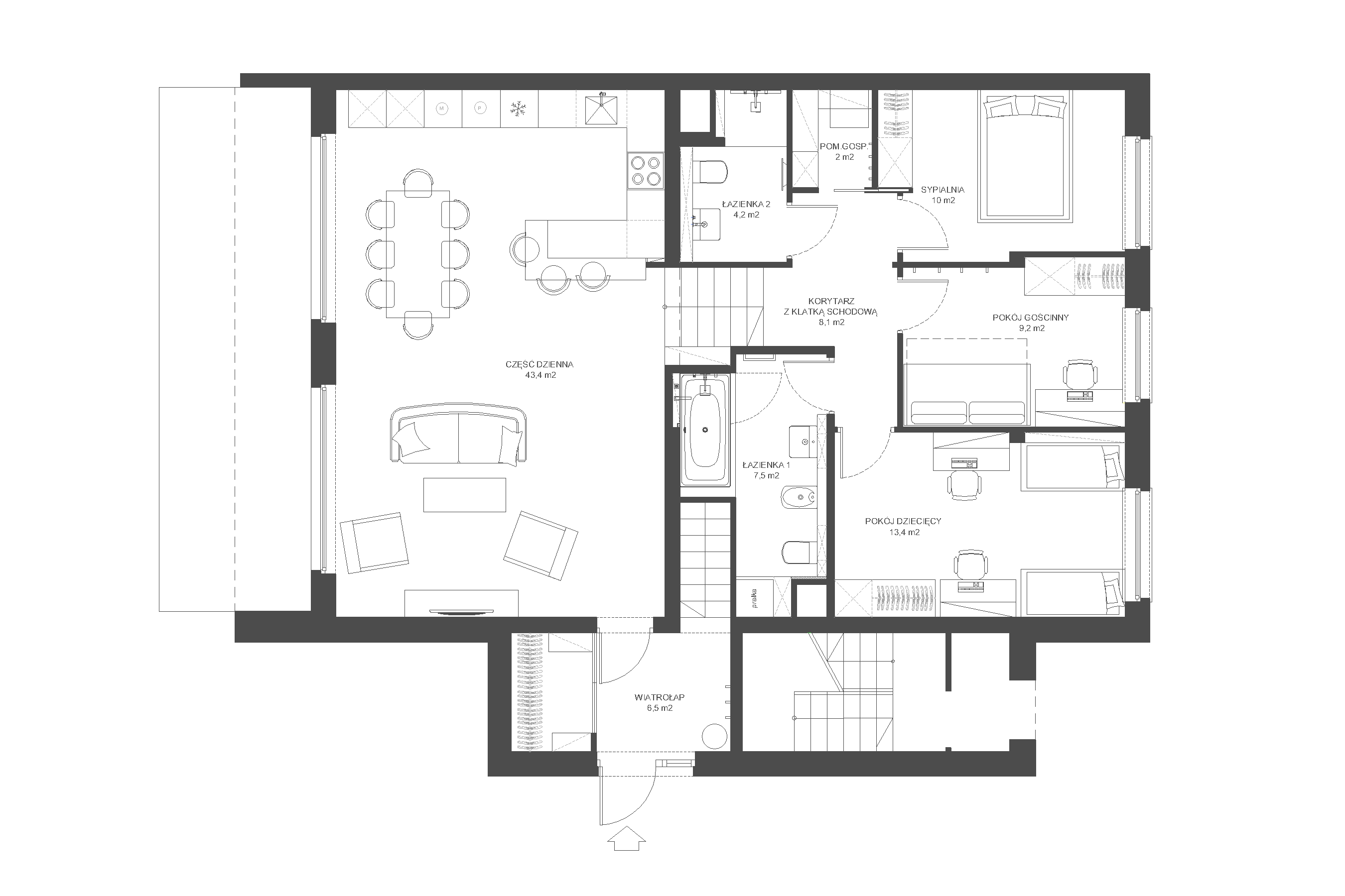
106 m2
Dom szeregowy
Wrocław
2018

Klienci byli bardzo otwarci na nasze propozycje, ale jednocześnie dokładnie określili swoje oczekiwania, zarówno pod względem funkcjonalnym, jak i estetycznym. Na wstępie pojawiły się informacje o tym, że dużo gotują, często przyjmują gości i spędzają czas w gronie rodzinnym przy książkach i muzyce.

Wiedziałyśmy już, że część dzienna, musi być otwarta, sprzyjająca spotkaniom z przyjaciółmi, a kuchnia przestronna i ergonomiczna. Dlatego poza dużym stołem, pojawia się wyspa, przy której można gościć znajomych, podczas wspólnego gotowania. Zamiłowanie inwestorów do naturalnych materiałów, zaowocowało dużą ilością drewna w domu. To dzięki niemu, przestrzeń jest ciepła i przyjazna dla całej rodziny.

Sprecyzowane wytyczne inwestorów, przyczyniły się do przeprojektowania układu funkcjonalnego całego domu. Np. dzięki pomniejszeniu klatki schodowej, uzyskałyśmy znacznie większy metraż łazienki.
Sprecyzowane wytyczne inwestorów, przyczyniły się do przeprojektowania układu funkcjonalnego całego domu. Np. dzięki pomniejszeniu klatki schodowej, uzyskałyśmy znacznie większy metraż łazienki.
Wysokie, jasne przeszklenia z widokiem na ogród.
Wysokie, jasne przeszklenia z widokiem na ogród.
Otwarta przestrzeń części dziennej do spędzania czasu z rodziną i przyjaciółmi.
Otwarta przestrzeń części dziennej do spędzania czasu z rodziną i przyjaciółmi.
Kuchnia została oddzielona od jadalni wyspą z regałem na książki. Zaś wysoka zabudowa z witryną, jest łącznikiem pomiędzy tymi strefami.
Kuchnia została oddzielona od jadalni wyspą z regałem na książki. Zaś wysoka zabudowa z witryną, jest łącznikiem pomiędzy tymi strefami.
Drewniana ściana jest schowkiem na pralkę, a za lustrami znajdują się liczne szafki.
Drewniana ściana jest schowkiem na pralkę, a za lustrami znajdują się liczne szafki.
Wanna z parawanem, czyli 2 w 1.
Wanna z parawanem, czyli 2 w 1.
Duża ilość luster, optycznie powiększa łazienkę.
Duża ilość luster, optycznie powiększa łazienkę.
Pomieszczenie jest dosyć wąskie i długie, ale bardzo funkcjonalne.
Pomieszczenie jest dosyć wąskie i długie, ale bardzo funkcjonalne.
Naturalne materiały, zielona mozaika i odcienie szarości równoważą białe tafle koloru.
Naturalne materiały, zielona mozaika i odcienie szarości równoważą białe tafle koloru.
Łazienka przy sypialni. Widok od strony wejścia.
Łazienka przy sypialni. Widok od strony wejścia.
Kolorystyka łazienki jest spójna z pozostałymi pomieszczeniami.
Kolorystyka łazienki jest spójna z pozostałymi pomieszczeniami.
Mała łazienka przy sypialni z szafkami i półkami na najpotrzebniejsze rzeczy.
Mała łazienka przy sypialni z szafkami i półkami na najpotrzebniejsze rzeczy.